Mattituck Handy Pantry landlord hopes to build apartments
The woods behind Handy Pantry in Mattituck could be cleared for an apartment complex that would provide much-needed workforce housing, pending planning board approval of measures to protect neighboring homes from the development.
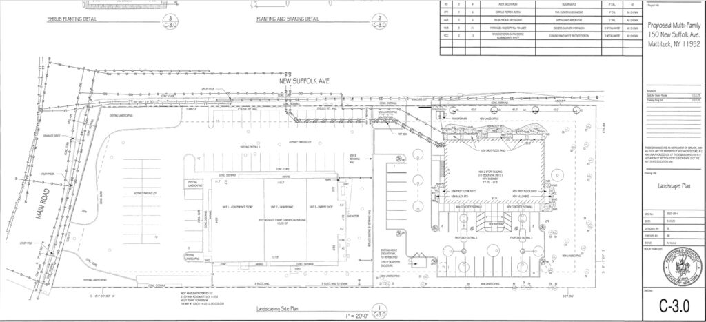
The proposed 21,155-square-foot building at 150 New Suffolk Avenue would contain 10 units — five affordable and five market rate — in a mix of sizes: three one-bedrooms, five two-bedroom units, and two three-bedroom units. All the units have at least one exterior balcony. There will be a 50-foot buffer to the adjacent residential property.

The property sits at the corner of Main Road and New Suffolk Avenue in the Hamlet Business zoning district, which allows for mixed-use development combining commercial and residential uses.

This is the first time the Nesconset-based owners of the Handy Pantry chain will be developing a building for residential use.
“We’ve owned the property and been part of the community for over 33 years now,” Nickolas Mirando, director of sales and operations for Handy Pantry headquarters told The Suffolk Times after the plan was presented during a Southold Town Planning Board work session on Nov. 3.
Mr. Mirando is the grandson of Handy Pantry’s founders Joseph and Dorothy Stocken. The shopping plaza currently houses Handy Pantry, a laundromat and a barbershop.
“In the interest of the town’s needs and the community’s needs, that’s kind of how we got to where we are, because they said that, with the housing crisis, this would be well received,” Mr. Mirando added.
James Manicone, the architect in charge of the project, also cited the need for affordable housing in the area.

“The project is receiving the support it is because the town is in need of both regular and workforce housing as it attempts to bring in other businesses and keep people in the town. The building is being built on an undeveloped portion of the existing lot,” Mr. Manicone said. “The exterior design of the building is going to incorporate other elements that are consistent with that kind of vintage look in the town of Southold.”
However, the current concept will need some revisions before it is considered complete, according to a representative from the planning department speaking on background. In the follow up letter to the applicant obtained by The Suffolk Times, the planning board called for the landscaping plan to delineate all interior parking lot landscaping areas, including dimensions and tree placement, and ensure perimeter landscaping along parking areas meets the required 1 tree per 40 linear feet standard.
The trees in the landscaped parking areas must be fast-growing, hardy species such as honey locust, pine, or oak, or existing trees if appropriately located. The plan must also update the planting schedule to prioritize native and drought-tolerant species.
The plan must provide a transition buffer along the eastern boundary. The buffer must include, at a minimum, a double row of six-foot tall evergreen trees spaced 10 feet on center to effectively screen activity on the lot from the neighboring residential area.
When it comes to lighting, the plans must clarify all fixture types and mounting configurations, confirm the color temperature, and indicate mounting heights and pole/foundation details. The board wants to know the hours of operation and proposed control methods. They need the total lumens for the 2.11-acre site and demonstrate compliance, taking into consideration existing exterior lighting. They must also correct the plan to ensure maximum footcandle levels do not exceed 5.0 at any lit surface.
The development would add 25 new parking stalls, bringing the property total to 81 spaces — 10 fewer than technically required under town code, though the existing lot is rarely full.
Once these additions are made, the plan can be considered complete and a public hearing can be scheduled.
Wally Peterson, the owner of the Handy Pantry franchise, distanced his business from the proposal after backlash over the proposed apartment complex within walking distance of Love Lane and the LIRR station.
“Neither me nor any members of my store have anything to do with this project, and we had no advance knowledge of our landlord’s plans,” Mr. Peterson wrote in a Facebook post. “I do understand your concerns with a project of this size next to a residential neighborhood. Whichever side of this project you are on please treat our staff with respect and understand we are not part of this project and it does not benefit us in any way,”
His response received support from others on the social media site.
“Just a suggestion if you can, post this letter on the front door of Handy Pantry or in the store in a visible location so people who don’t see this on FB get your message!” Patricia Wright wrote. “I think it’s horrible that anyone disrespect you or any of your hard-working staff! It is uncalled for in any case! Shame on them.”

